APEX EcoBuilt
Leading Manufacturer of Aluminum Systems & Modular Housing
APEX EcoBuilt
Leading Manufacturer of Aluminum Systems & Modular Housing
A futuristic, self-contained living module designed for rapid deployment in high-end tourism and remote hospitality projects.
External Dimensions
Thermal Performance
Wind Load Resistance
Lead Time
Design Life

The APEX Modular Capsule House is a premium prefabricated structure utilizing an aerospace-grade aluminum shell and high-performance thermal glazing. Designed for the 'glamping' and luxury resort markets, it offers a 270-degree panoramic view through floor-to-ceiling tempered glass, combining structural durability with a sleek, futuristic aesthetic.
Fully prefabricated off-site with integrated plumbing and electrical, requiring only a simple crane lift and utility connection upon arrival.
The corrosion-resistant aluminum facade ensures long-term durability in coastal or humid environments without the need for frequent maintenance.
Multi-layer polyurethane insulation combined with Low-E double glazing maintains interior comfort in extreme temperatures from -30°C to 45°C.
The lightweight structural frame requires minimal ground intervention, making it ideal for ecologically sensitive or protected landscapes.
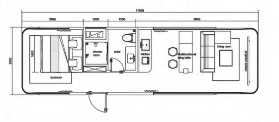
Each capsule features a standardized 11.5-meter layout including a master bedroom, a dry-wet separated bathroom, a functional kitchen, and a living area with an integrated projector screen. The interior is finished with eco-friendly bamboo charcoal fiber panels and smart home automation systems.
Exterior finishes are available in multiple fluorocarbon-coated metallic colors. The structural frame is built to seismic intensity 8 standards, ensuring safety across diverse global topographies.


Technical and logistical information regarding the procurement and installation of our modular capsule systems.
Fill out the form below and our team will get back to you within 24 hours with a tailored solution.